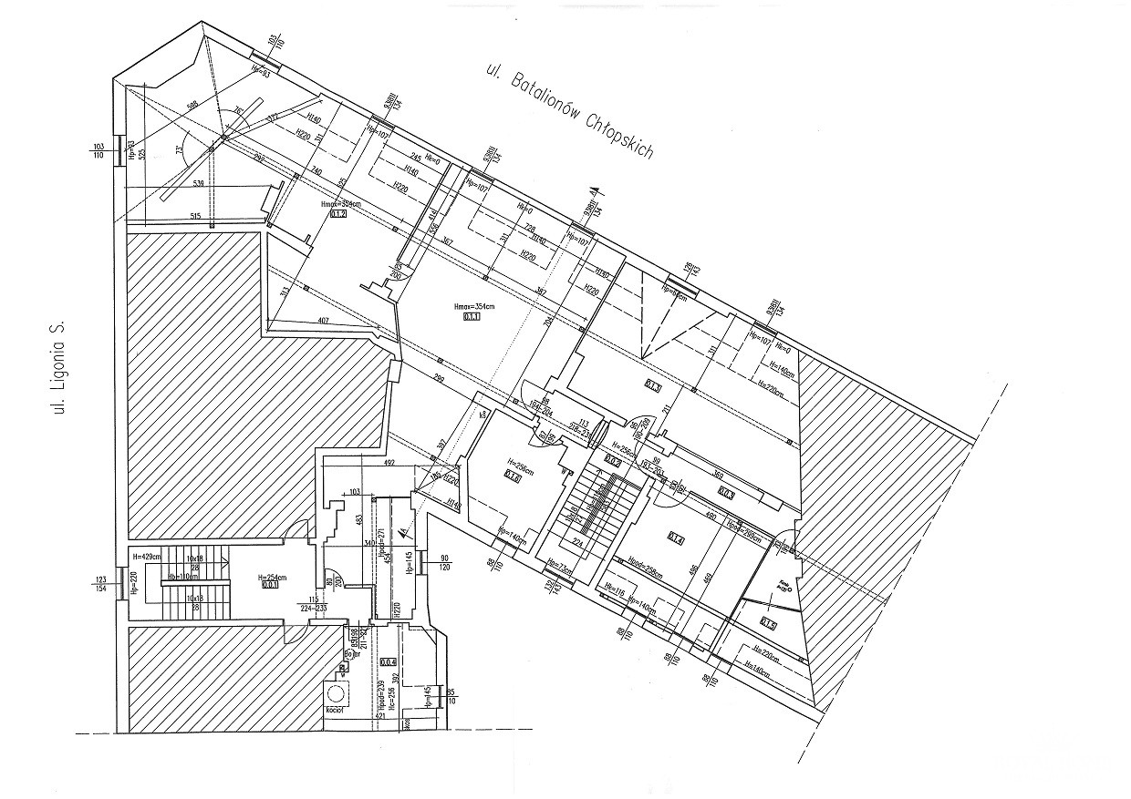
Strych przeznaczony do adaptacji na cele mieszkalne o łącznej powierzchni użytkowej około 200m2, położony w Nysie, w ścisłym centrum miasta przy ul. Ligonia 4. Odległość do Rynku wynosi około 200 metrów. Nieruchomość znajduje się w odrestaurowanej kamienicy z lat 30-tych, nowa elewacja. Na parterze budynku znajdują się lokale użytkowe, na piętrach lokale mieszkalne. Nieruchomość idealnie nadaje się na zakup w celach inwestycyjnych do przekształcenia na mieszkania pod wynajem. Strych z dostępem z dwóch klatek schodowych. Z okien rozpościera się piękny widok na panoramę miasta, rzekę. Miejsca parkingowe dostępne koło budynku.
Bezpłatnie prowadzimy doradztwo kredytowe, dzięki któremu uzyskają Państwo najkorzystniejszy kredyt na zakup nieruchomości.
Oferta jest dostępna wyłącznie w Biurze Royal Home Nieruchomości. Zapraszamy do kontaktu 🙂
Usługa pośrednictwa jest USŁUGĄ PŁATNĄ, w sytuacji zakupu nieruchomości. Prezentacje wszystkich nieruchomości są bezpłatne. Przed prezentacją, za okazaniem dokumentu tożsamości, należy podpisać umowę pośrednictwa.
Treść niniejszego ogłoszenia nie stanowi oferty handlowej w rozumieniu Kodeksu Cywilnego. Treść ma charakter informacyjny i zalecamy ich osobistą weryfikację. Kontaktując się z biurem Klient wyraża zgodę na przetwarzanie danych osobowych zgodnie z przepisami ustawy z dnia 29 sierpnia 1997 roku o ochronie danych osobowych / Dz.U.Nr. 133 poz. 883/. Klientowi przysługuje prawo do wglądu do swoich danych osobowych i ich aktualizacji.




